Share this property:
Contact Julie Ann Ludovico
Schedule A Showing
Request more information
- Home
- Property Search
- Search results
- 838 Monterey Boulevard Ne, ST PETERSBURG, FL 33704
Property Photos

- MLS#: TB8452164 ( Residential )
- Street Address: 838 Monterey Boulevard Ne
- Viewed: 126
- Price: $4,995,000
- Price sqft: $766
- Waterfront: Yes
- Wateraccess: Yes
- Waterfront Type: Bayou
- Year Built: 2005
- Bldg sqft: 6522
- Bedrooms: 5
- Total Baths: 5
- Full Baths: 5
- Garage / Parking Spaces: 3
- Days On Market: 26
- Additional Information
- Geolocation: 27.7967 / -82.6289
- County: PINELLAS
- City: ST PETERSBURG
- Zipcode: 33704
- Subdivision: Snell Isle Shores
- Provided by: SOUTHERN ROOTS REALTY, LLC
- Contact: Billy Harvard, IV
- 727-498-1673

- DMCA Notice
-
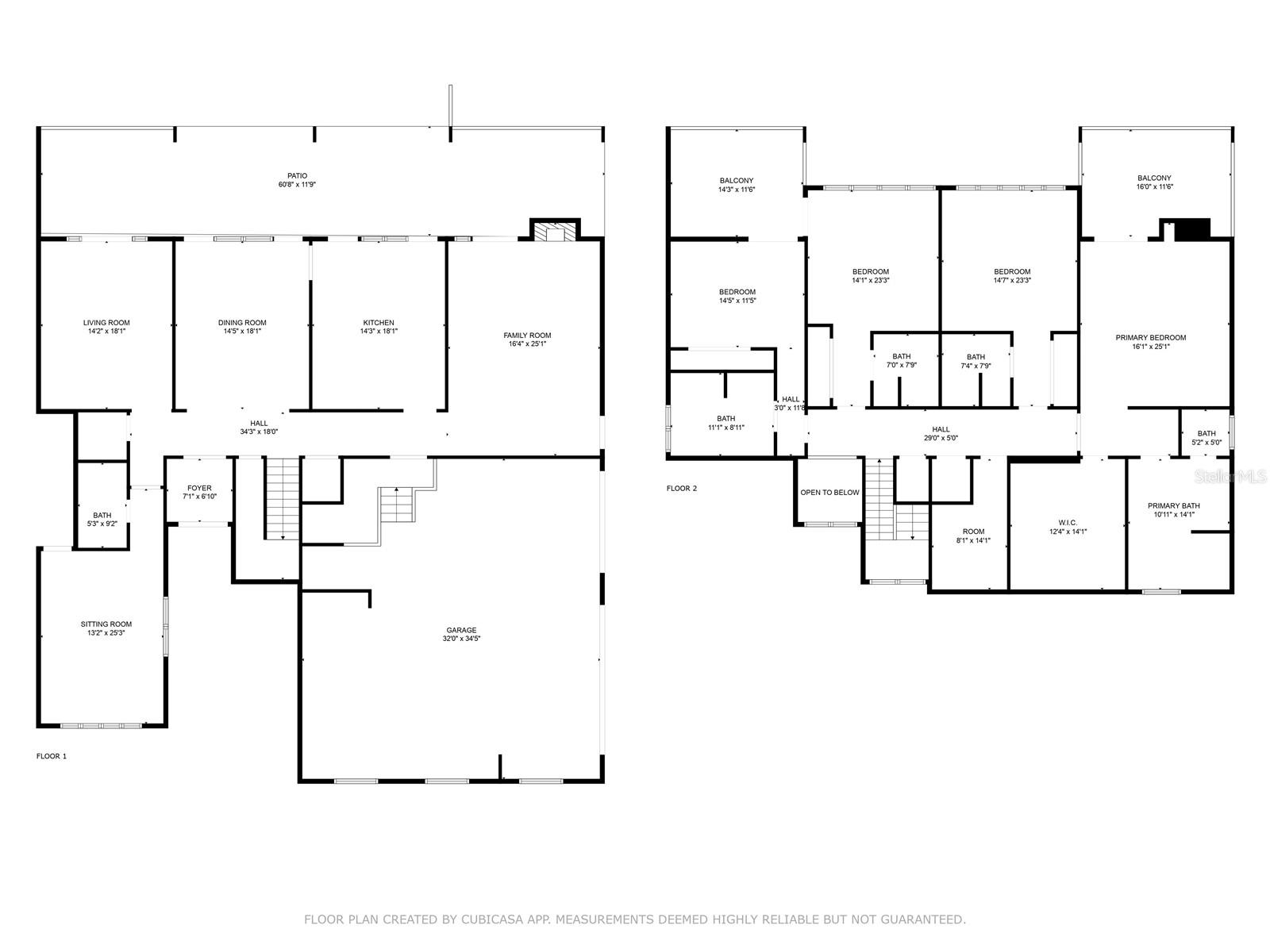
DescriptionDesigned by renowned Architect William Harvard Jr and built in 2005, this waterfront modern marvel boasts a beautiful layout and a wonderful view in a highly desirable location of Snell Isle. This home was built like a bunker, and was certainly tested during the recent storms, with no damage or interior flooding. The home sits above the flood plane, and the exterior walls are concrete block with filled cells, and with structural steel studs. Interior walls are also concrete block with prestressed concrete planks for ceiling and roof support. The floor construction is concrete under the beautiful hardwoods. The home also features a new roof in 2024, hurricane windows and doors throughout, and a whole house generator so you don't lose power in any storm. Beyond the best construction, this is an artist's home, where natural light fills the spacious rooms, and provides grand wall space with 10' ceilings on the first floor. Enter through the custom metal front doors into a two story foyer. To the left is a beautiful formal living room and large hall closet that could be turned into a butler's pantry or wet bar. The large first floor den also features a full bath, and could be used as a downstairs primary or guest room. For the ultimate entertainer, the formal dining room connects to the chef's kitchen, featuring a professional 6 burner Thermador range and large eat at island with custom red quartz. The cozy family room features a gas fireplace and inlaid wood floors. Every living space features french doors that open to the Spanish tiled porch that spans the width of the home, the ideal place to enjoy the morning air or evening beauty of Coffee Pot Bayou. When it is time to retire for the night, take the elevator to the second floor, featuring 8' ceilings, wood and carpet floors. Three bedrooms upstairs all feature en suite bathrooms with cast iron tubs, custom vanities and countertops, and waterfront views. Down the hall is a large laundry room with great storage. The master suite features a large walk in closet and large bathroom with shower, garden tub, toilet room, dressing area, and custom double vanity. All bedrooms on the second floor have doors to two covered porches, where you can enjoy a morning coffee overlooking your private yard and updated dock on the bayou. The dock was rebuilt in 2024 and has both a boat lift and jet ski lift. A massive three car garage has high ceilings and bonus storage areas, and can accommodate a car lover's lifts for multiple vehicles and toys. Just minutes to downtown St Petersburg, this beautiful Snell Isle home was built to last, and its modern design make it timeless. Make your private showing appointment today!
All
Similar
Features
Waterfront Description
- Bayou
Appliances
- Convection Oven
- Dishwasher
- Disposal
- Dryer
- Exhaust Fan
- Gas Water Heater
- Microwave
- Range Hood
- Refrigerator
- Tankless Water Heater
- Washer
Home Owners Association Fee
- 0.00
Carport Spaces
- 0.00
Close Date
- 0000-00-00
Cooling
- Central Air
Country
- US
Covered Spaces
- 0.00
Exterior Features
- Balcony
- Lighting
Flooring
- Carpet
- Tile
- Wood
Furnished
- Negotiable
Garage Spaces
- 3.00
Heating
- Central
Insurance Expense
- 0.00
Interior Features
- Elevator
- High Ceilings
- Thermostat
- Walk-In Closet(s)
- Window Treatments
Legal Description
- SNELL ISLE SHORES BLK 3
- LOT 14
Levels
- Two
Living Area
- 4334.00
Area Major
- 33704 - St Pete/Euclid
Net Operating Income
- 0.00
Occupant Type
- Owner
Open Parking Spaces
- 0.00
Other Expense
- 0.00
Parcel Number
- 08-31-17-83664-003-0140
Property Type
- Residential
Roof
- Built-Up
- Concrete
Sewer
- Public Sewer
Tax Year
- 2023
Township
- 31
Utilities
- BB/HS Internet Available
- Cable Connected
- Electricity Connected
- Fiber Optics
- Natural Gas Connected
- Phone Available
Views
- 126
Virtual Tour Url
- https://www.propertypanorama.com/instaview/stellar/TB8452164
Water Source
- Public
Year Built
- 2005
Listing Data ©2025 Greater Fort Lauderdale REALTORS®
Listings provided courtesy of The Hernando County Association of Realtors MLS.
Listing Data ©2025 REALTOR® Association of Citrus County
Listing Data ©2025 Royal Palm Coast Realtor® Association
The information provided by this website is for the personal, non-commercial use of consumers and may not be used for any purpose other than to identify prospective properties consumers may be interested in purchasing.Display of MLS data is usually deemed reliable but is NOT guaranteed accurate.
Datafeed Last updated on December 27, 2025 @ 12:00 am
©2006-2025 brokerIDXsites.com - https://brokerIDXsites.com
Sign Up Now for Free!X
Call Direct: Brokerage Office: Mobile: 352.442.9386
Registration Benefits:
- New Listings & Price Reduction Updates sent directly to your email
- Create Your Own Property Search saved for your return visit.
- "Like" Listings and Create a Favorites List
* NOTICE: By creating your free profile, you authorize us to send you periodic emails about new listings that match your saved searches and related real estate information.If you provide your telephone number, you are giving us permission to call you in response to this request, even if this phone number is in the State and/or National Do Not Call Registry.
Already have an account? Login to your account.