Share this property:
Contact Julie Ann Ludovico
Schedule A Showing
Request more information
- Home
- Property Search
- Search results
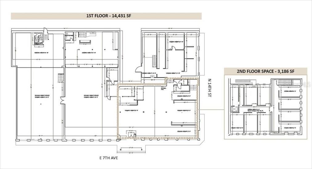
- 1324 7th Avenue, TAMPA, FL 33605
Active
Property Photos

- MLS#: TB8491237 ( Commercial Sale )
- Street Address: 1324 7th Avenue
- Viewed: 94
- Price: $9,995,000
- Price sqft: $560
- Waterfront: No
- Year Built: 1905
- Bldg sqft: 17864
- Days On Market: 35
- Additional Information
- Geolocation: 27.9605 / -82.4446
- County: HILLSBOROUGH
- City: TAMPA
- Zipcode: 33605
- Subdivision: Ybor City Blk Y
- Provided by: FLORIDA COMMERCIAL GROUP
- Contact: Tina Marie Eloian
- 813-935-9600

- DMCA Notice
-
DescriptionSituated in the heart of Ybor City on historic 7th Avenue, this iconic mixed use property presents a rare opportunity for investors or owner users seeking a prime location in one of Tampas most vibrant districts. The property features approximately 17,864 square feet of flexible space ideal for office, retail, or restaurant use, with the ability to subdivide. This historic building offers strong visibility, high foot traffic, and immediate access to surrounding retail, dining, and entertainment venues. Additional highlights include ample onsite parking, central air conditioning, and flexible build out potential. Positioned along a main thoroughfare, this property benefits from consistent pedestrian and vehicle traffic, making it ideal for a wide range of commercial uses.
All
Similar
Features
Home Owners Association Fee
- 0.00
Carport Spaces
- 0.00
Close Date
- 0000-00-00
Cooling
- None
Country
- US
Covered Spaces
- 0.00
Garage Spaces
- 0.00
Insurance Expense
- 0.00
Legal Description
- YBOR CITY MAP E 46 1/2 FT OF LOT 9 AND LOT 10 BLOCK 29 TOGETHER WITH E 5.50 FT OF N 30 FT OF LOT 18 AND LOTS 20 AND 22 OF LE DUC'S RESUB
Living Area
- 21555.00
Area Major
- 33605 - Tampa / Ybor City
Net Operating Income
- 0.00
Open Parking Spaces
- 0.00
Other Expense
- 0.00
Parcel Number
- A-18-29-19-50N-000029-00009.0
Property Type
- Commercial Sale
Road Frontage Type
- City Street
- Main Throrughfare
Tax Year
- 2025
Township
- 29
Views
- 94
Virtual Tour Url
- https://www.propertypanorama.com/instaview/stellar/TB8491237
Year Built
- 1905
Zoning Code
- YC-1
Listing Data ©2026 Greater Fort Lauderdale REALTORS®
Listings provided courtesy of The Hernando County Association of Realtors MLS.
Listing Data ©2026 REALTOR® Association of Citrus County
Listing Data ©2026 Royal Palm Coast Realtor® Association
The information provided by this website is for the personal, non-commercial use of consumers and may not be used for any purpose other than to identify prospective properties consumers may be interested in purchasing.Display of MLS data is usually deemed reliable but is NOT guaranteed accurate.
Datafeed Last updated on May 7, 2026 @ 12:00 am
©2006-2026 brokerIDXsites.com - https://brokerIDXsites.com
Sign Up Now for Free!X
Call Direct: Brokerage Office:
Registration Benefits:
- New Listings & Price Reduction Updates sent directly to your email
- Create Your Own Property Search saved for your return visit.
- "Like" Listings and Create a Favorites List
* NOTICE: By creating your free profile, you authorize us to send you periodic emails about new listings that match your saved searches and related real estate information.If you provide your telephone number, you are giving us permission to call you in response to this request, even if this phone number is in the State and/or National Do Not Call Registry.
Already have an account? Login to your account.