Share this property:
Contact Julie Ann Ludovico
Schedule A Showing
Request more information
- Home
- Property Search
- Search results
- 13706 Artesa Bell Drive, RIVERVIEW, FL 33579
Active
Property Photos

- MLS#: TB8493938 ( Residential )
- Street Address: 13706 Artesa Bell Drive
- Viewed: 3
- Price: $505,000
- Price sqft: $171
- Waterfront: No
- Year Built: 2006
- Bldg sqft: 2946
- Bedrooms: 4
- Total Baths: 3
- Full Baths: 3
- Garage / Parking Spaces: 2
- Days On Market: 6
- Additional Information
- Geolocation: 27.7808 / -82.31
- County: HILLSBOROUGH
- City: RIVERVIEW
- Zipcode: 33579
- Subdivision: South Fork
- Elementary School: Summerfield Crossing Elementar
- Middle School: Eisenhower HB
- High School: Sumner
- Provided by: RE/MAX REALTY UNLIMITED
- Contact: Cedric Rogers
- 813-684-0016

- DMCA Notice
-
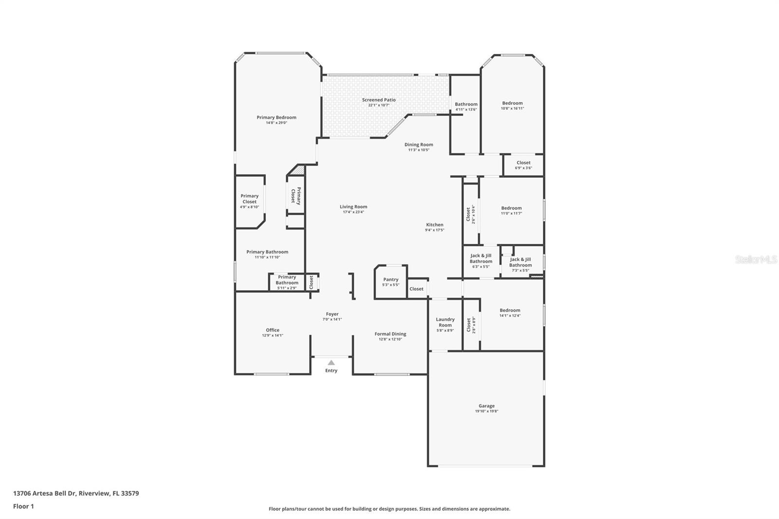
DescriptionWelcome to this stunning 4 bedroom, 3 bathroom home designed for both comfort and functionality, featuring a desirable three way split floor plan that offers privacy for everyone. Step inside to find beautiful luxury vinyl flooring flowing throughout the main living areas, complemented by a dedicated office and a formal dining roomperfect for working from home and hosting memorable gatherings. The heart of the home is the spacious, updated kitchen, showcasing elegant white cabinetry, sleek quartz countertops, stainless steel appliances, a large center island, and not one but two walk in pantriesa dream for storage and entertaining alike. An indoor laundry room with built in cabinets adds even more convenience. Retreat to the expansive primary suite, complete with an extended sitting area highlighted by a charming bay window. Enjoy the spa like ensuite featuring dual walk in closets, a jetted soaking tub, and a separate standalone shower. Bedrooms two and three are connected by a Jack and Jill bathroom, while the fourth bedroom is privately situated with its own full bathideal for guests or multi generational living. An over sized 2 car garage with an EV / Tesla charger. Step outside to your fully vinyl fenced backyard oasis, where youll find mature fruit trees, above ground garden beds, and a breathtaking pond viewperfect for relaxing or entertaining in a serene setting. This home truly offers the perfect blend of space, style, and thoughtful designready for you to move in and enjoy!
All
Similar
Features
Appliances
- Dishwasher
- Disposal
- Microwave
- Range
- Refrigerator
Home Owners Association Fee
- 141.00
Association Name
- First Service Residential / Sarah Ranney
Association Phone
- 866-378-1099
Builder Name
- K Hovnanian Windward Homes
Carport Spaces
- 0.00
Close Date
- 0000-00-00
Cooling
- Central Air
Country
- US
Covered Spaces
- 0.00
Exterior Features
- Garden
- Rain Gutters
- Sliding Doors
Fencing
- Vinyl
Flooring
- Carpet
- Luxury Vinyl
- Tile
Furnished
- Unfurnished
Garage Spaces
- 2.00
Heating
- Central
High School
- Sumner High School
Insurance Expense
- 0.00
Interior Features
- Ceiling Fans(s)
- High Ceilings
- Open Floorplan
- Primary Bedroom Main Floor
- Split Bedroom
- Walk-In Closet(s)
Legal Description
- SOUTH FORK UNIT 11 LOT 11 BLOCK 9
Levels
- One
Living Area
- 2946.00
Middle School
- Eisenhower-HB
Area Major
- 33579 - Riverview
Net Operating Income
- 0.00
Occupant Type
- Owner
Open Parking Spaces
- 0.00
Other Expense
- 0.00
Parcel Number
- U-16-31-20-88D-000009-00011.0
Pets Allowed
- Cats OK
- Dogs OK
Possession
- Close Of Escrow
Property Type
- Residential
Roof
- Shingle
School Elementary
- Summerfield Crossing Elementary
Sewer
- Public Sewer
Tax Year
- 2025
Township
- 31
Utilities
- BB/HS Internet Available
- Cable Available
- Electricity Available
- Fiber Optics
View
- Water
Virtual Tour Url
- https://www.propertypanorama.com/instaview/stellar/TB8493938
Water Source
- Public
Year Built
- 2006
Zoning Code
- PD
Listing Data ©2026 Greater Fort Lauderdale REALTORS®
Listings provided courtesy of The Hernando County Association of Realtors MLS.
Listing Data ©2026 REALTOR® Association of Citrus County
Listing Data ©2026 Royal Palm Coast Realtor® Association
The information provided by this website is for the personal, non-commercial use of consumers and may not be used for any purpose other than to identify prospective properties consumers may be interested in purchasing.Display of MLS data is usually deemed reliable but is NOT guaranteed accurate.
Datafeed Last updated on April 10, 2026 @ 12:00 am
©2006-2026 brokerIDXsites.com - https://brokerIDXsites.com
Sign Up Now for Free!X
Call Direct: Brokerage Office:
Registration Benefits:
- New Listings & Price Reduction Updates sent directly to your email
- Create Your Own Property Search saved for your return visit.
- "Like" Listings and Create a Favorites List
* NOTICE: By creating your free profile, you authorize us to send you periodic emails about new listings that match your saved searches and related real estate information.If you provide your telephone number, you are giving us permission to call you in response to this request, even if this phone number is in the State and/or National Do Not Call Registry.
Already have an account? Login to your account.