Share this property:
Contact Julie Ann Ludovico
Schedule A Showing
Request more information
- Home
- Property Search
- Search results
- 7821 3rd Avenue S, ST PETERSBURG, FL 33707
Active
Property Photos

- MLS#: TB8491647 ( Residential )
- Street Address: 7821 3rd Avenue S
- Viewed: 122
- Price: $3,599,999
- Price sqft: $900
- Waterfront: Yes
- Wateraccess: Yes
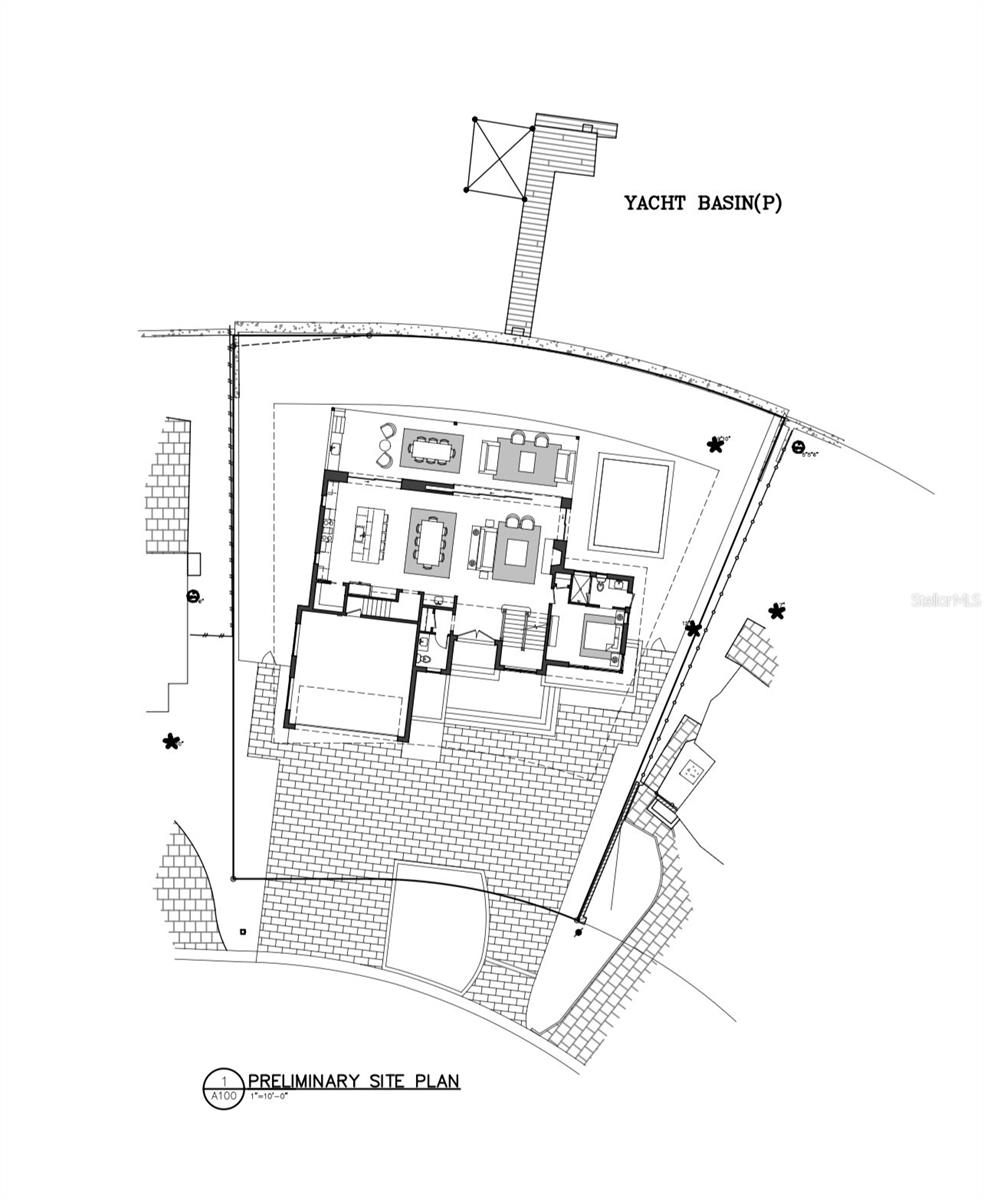
- Waterfront Type: Freshwater Canal w/Lift to Saltwater Canal
- Year Built: 2026
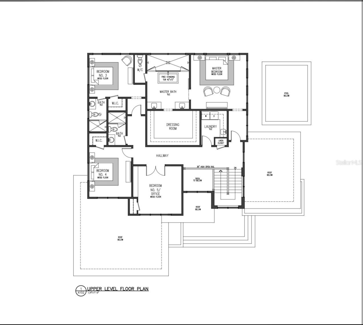
- Bldg sqft: 4000
- Bedrooms: 4
- Total Baths: 5
- Full Baths: 4
- 1/2 Baths: 1
- Garage / Parking Spaces: 2
- Days On Market: 29
- Additional Information
- Geolocation: 27.7666 / -82.7445
- County: PINELLAS
- City: ST PETERSBURG
- Zipcode: 33707
- Subdivision: South Cswy Isle 3rd Add
- Provided by: PHIL DESAUTELS P.A.
- Contact: Sheila Desautels
- 813-629-7355

- DMCA Notice
-
DescriptionPre Construction. To be built. Pre Construction | To Be Built | Causeway Isles Waterfront Build your dream home on one of St. Petersburgs most desirable open water homesites in the heart of Causeway Isles. Located at 7821 3rd Ave S, this exceptional property offers over 100 feet of deep saltwater frontage with a protected yacht slip suitable for vessels up to 80 feet. Enjoy expansive water views, peaceful surroundings, and unforgettable sunset skies overlooking Sunset Parkperfectly capturing the essence of waterfront living. This prime location places you just minutes from downtown St. Pete, the beaches of Treasure Island, and direct access to the Intracoastal Waterway, making it ideal for both boating and everyday convenience. A new seawall installed in May 2025 adds long term value and confidence as you plan your future residence. The lot comfortably supports a custom home in the 3,850+ square foot range, allowing for a thoughtfully designed layout that embraces indoor outdoor living. A proposed concept features a 4 bedroom, 4.5 bath design with a private pool, outdoor kitchen, spacious covered lanai, and optional elevator. The architecture leans toward a modern coastal style, incorporating clean lines, natural light, and expansive glass to highlight the water views. Neo Homes offers a full turnkey design build approach, including: Custom architecture and interior design High end, curated finish selections Hurricane rated construction built to Florida standards A streamlined, start to finish building experience This is an opportunity to create a personalized waterfront residence tailored to your lifestyle in a well established boating community. If youve been searching for a premium waterfront homesite in St. Petersburg, this property is truly worth exploring. Note: Photos shown are from a previously completed home by Neo Homes and are intended to represent the quality, craftsmanship, and level of finishes available for this homesite.
All
Similar
Features
Waterfront Description
- Freshwater Canal w/Lift to Saltwater Canal
Appliances
- Cooktop
- Dishwasher
- Range
- Range Hood
- Refrigerator
Home Owners Association Fee
- 0.00
Carport Spaces
- 0.00
Close Date
- 0000-00-00
Cooling
- Central Air
Country
- US
Covered Spaces
- 0.00
Exterior Features
- Outdoor Kitchen
Flooring
- Hardwood
Furnished
- Unfurnished
Garage Spaces
- 2.00
Heating
- Central
Insurance Expense
- 0.00
Interior Features
- Ceiling Fans(s)
- Kitchen/Family Room Combo
- Open Floorplan
- Walk-In Closet(s)
Legal Description
- SOUTH CAUSEWAY ISLE 3RD ADD BLK 9
- LOT 12
Levels
- Two
Living Area
- 3850.00
Area Major
- 33707 - St Pete/South Pasadena/Gulfport/St Pete Bc
Net Operating Income
- 0.00
New Construction Yes / No
- Yes
Occupant Type
- Vacant
Open Parking Spaces
- 0.00
Other Expense
- 0.00
Parcel Number
- 24-31-15-84042-009-0120
Pool Features
- In Ground
Property Condition
- Pre-Construction
Property Type
- Residential
Roof
- Other
Sewer
- Public Sewer
Tax Year
- 2025
Township
- 31
Utilities
- Other
Views
- 122
Virtual Tour Url
- https://www.propertypanorama.com/instaview/stellar/TB8491647
Water Source
- Public
Year Built
- 2026
Listing Data ©2026 Greater Fort Lauderdale REALTORS®
Listings provided courtesy of The Hernando County Association of Realtors MLS.
Listing Data ©2026 REALTOR® Association of Citrus County
Listing Data ©2026 Royal Palm Coast Realtor® Association
The information provided by this website is for the personal, non-commercial use of consumers and may not be used for any purpose other than to identify prospective properties consumers may be interested in purchasing.Display of MLS data is usually deemed reliable but is NOT guaranteed accurate.
Datafeed Last updated on April 29, 2026 @ 12:00 am
©2006-2026 brokerIDXsites.com - https://brokerIDXsites.com
Sign Up Now for Free!X
Call Direct: Brokerage Office:
Registration Benefits:
- New Listings & Price Reduction Updates sent directly to your email
- Create Your Own Property Search saved for your return visit.
- "Like" Listings and Create a Favorites List
* NOTICE: By creating your free profile, you authorize us to send you periodic emails about new listings that match your saved searches and related real estate information.If you provide your telephone number, you are giving us permission to call you in response to this request, even if this phone number is in the State and/or National Do Not Call Registry.
Already have an account? Login to your account.