Share this property:
Contact Julie Ann Ludovico
Schedule A Showing
Request more information
- Home
- Property Search
- Search results
- 3100 52nd Street N, ST PETERSBURG, FL 33710
Active
Property Photos

- MLS#: TB8495518 ( Residential )
- Street Address: 3100 52nd Street N
- Viewed: 6
- Price: $429,000
- Price sqft: $233
- Waterfront: No
- Year Built: 1960
- Bldg sqft: 1840
- Bedrooms: 2
- Total Baths: 2
- Full Baths: 2
- Garage / Parking Spaces: 1
- Days On Market: 2
- Additional Information
- Geolocation: 27.8 / -82.7044
- County: PINELLAS
- City: ST PETERSBURG
- Zipcode: 33710
- Subdivision: Brentwood Heights 2nd Add
- Elementary School: Westgate
- Middle School: Tyrone
- High School: St. Petersburg
- Provided by: STOFEL & ASSOCIATES REALTY
- Contact: Joey Torres
- 727-350-0373

- DMCA Notice
-
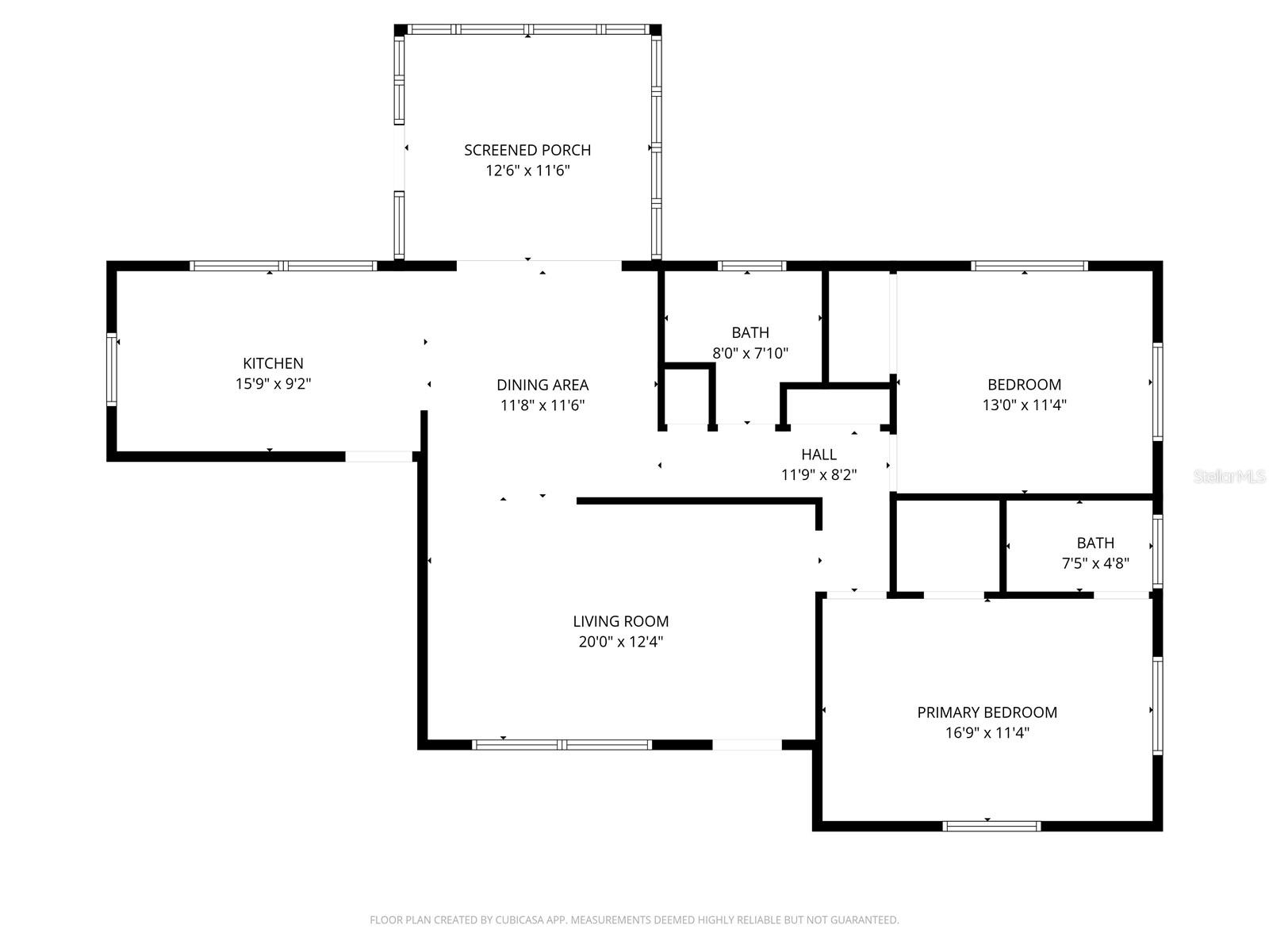
DescriptionCome home to the desirable and centrally located neighborhood of Brentwood heights. This block on slab foundation home is located in a Non Evacuation Zone and No Flood Insurance is required. Plenty of parking on the double driveway enough space to park side by side. The Oversized 391 Sq.Ft. (17' x 23') garage with laundry area is enough space to park 1 car and use as an additional storage space. Step into the Beautifully Renovated Kitchen offering gratuitous amounts of cabinet space with Granite counters, pantry cabinet, abundance of light through the large window overlooking the backyard, & brand new tile backsplash. The dining room adjacent to the kitchen stays just as bright, with sliding door access to the retro enclosed rear porch for year round living. The front living area of the home overlooks the covered front patio space and big front yard. The bedrooms both showcase large closets and ample space for a king or queen size bed. Two closets in the hallway provide space for linens and guest supplies. The guest bathroom has a tub while the primary en suite has a glass walled shower. Plus you'll get peace of mind knowing multiple major updates have been completed AC 2025, Water Heater 2025, & Sewer Line Replacement 2023. Take a morning walk to the locally loved "The Burg Diner" in under 7 minutes. Located less than a mile from Disston Plaza Publix, Little Italy Pizza, Pet Supermarket. Finally those summer days are calling, a 15 minute drive to the sands of Treasure Island Beach.
All
Similar
Features
Appliances
- Dishwasher
- Electric Water Heater
- Exhaust Fan
- Microwave
- Range
- Refrigerator
Home Owners Association Fee
- 0.00
Carport Spaces
- 0.00
Close Date
- 0000-00-00
Cooling
- Central Air
Country
- US
Covered Spaces
- 0.00
Exterior Features
- Fire Pit
- Sliding Doors
Fencing
- Fenced
- Vinyl
Flooring
- Ceramic Tile
- Laminate
- Tile
- Wood
Furnished
- Unfurnished
Garage Spaces
- 1.00
Heating
- Central
High School
- St. Petersburg High-PN
Insurance Expense
- 0.00
Interior Features
- Ceiling Fans(s)
- Crown Molding
- Primary Bedroom Main Floor
- Stone Counters
- Walk-In Closet(s)
Legal Description
- BRENTWOOD HEIGHTS 2ND ADD BLK 5
- LOT 19
Levels
- One
Living Area
- 1167.00
Lot Features
- City Limits
- Near Public Transit
- Sidewalk
- Paved
Middle School
- Tyrone Middle-PN
Area Major
- 33710 - St Pete/Crossroads
Net Operating Income
- 0.00
Occupant Type
- Owner
Open Parking Spaces
- 0.00
Other Expense
- 0.00
Other Structures
- Shed(s)
- Storage
Parcel Number
- 09-31-16-10998-005-0190
Parking Features
- Driveway
- Oversized
- Parking Pad
Pets Allowed
- Cats OK
- Dogs OK
- Yes
Possession
- Close Of Escrow
Property Condition
- Completed
Property Type
- Residential
Roof
- Shingle
School Elementary
- Westgate Elementary-PN
Sewer
- Public Sewer
Style
- Ranch
Tax Year
- 2025
Township
- 31
Utilities
- Electricity Connected
- Sewer Connected
Water Source
- Public
Year Built
- 1960
Listing Data ©2026 Greater Fort Lauderdale REALTORS®
Listings provided courtesy of The Hernando County Association of Realtors MLS.
Listing Data ©2026 REALTOR® Association of Citrus County
Listing Data ©2026 Royal Palm Coast Realtor® Association
The information provided by this website is for the personal, non-commercial use of consumers and may not be used for any purpose other than to identify prospective properties consumers may be interested in purchasing.Display of MLS data is usually deemed reliable but is NOT guaranteed accurate.
Datafeed Last updated on April 11, 2026 @ 12:00 am
©2006-2026 brokerIDXsites.com - https://brokerIDXsites.com
Sign Up Now for Free!X
Call Direct: Brokerage Office:
Registration Benefits:
- New Listings & Price Reduction Updates sent directly to your email
- Create Your Own Property Search saved for your return visit.
- "Like" Listings and Create a Favorites List
* NOTICE: By creating your free profile, you authorize us to send you periodic emails about new listings that match your saved searches and related real estate information.If you provide your telephone number, you are giving us permission to call you in response to this request, even if this phone number is in the State and/or National Do Not Call Registry.
Already have an account? Login to your account.